FRASCATI centrale Quadrilocale con ascensore e garage
Appartamento in Vendita: Un’opportunità da non perdere!
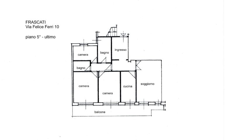
FRASCATI – Via Felice Ferri 10
Situato al quinto e ultimo piano di un edificio del 1978 con ascensore, questo appartamento è ideale per chi cerca un ambiente luminoso e spazioso. La posizione è strategica, adiacente alla stazione FFSS e a pochi passi da scuole medie e servizi. Con una superficie di 108 m², l’immobile offre un ingresso con un grande armadio a muro, un soggiorno accogliente e una cucina abitabile, perfetta per le cene in famiglia.
L’appartamento è composto da due camere da letto una cameretta e due bagni, rendendolo perfetto per famiglie o per chi desidera avere spazio extra. Un balcone di circa 15 mq affacciato su Via Mamiani offre un’ottima vista e uno spazio all’aperto per rilassarsi. Inoltre, è incluso un garage al piano interrato, una comodità che non può mancare.
Il riscaldamento autonomo garantisce comfort in ogni stagione, mentre l’immobile, da rivedere, offre la possibilità di personalizzarlo secondo i propri gusti. Con un prezzo richiesto di € 395.000, questa è un’opportunità imperdibile per chi cerca un appartamento da ristrutturare in una posizione centrale e ben servita. Non perdere l’occasione di visitarlo! ROSSI CASE Servizi Immobiliari s.r.l. tel. 069417928 – info@rossicasefrascati.it































Lascia un commento.